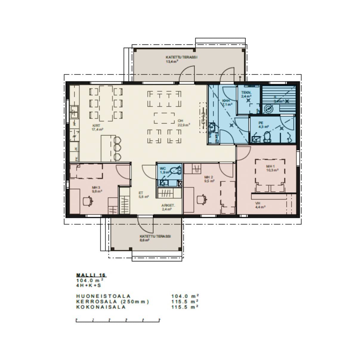
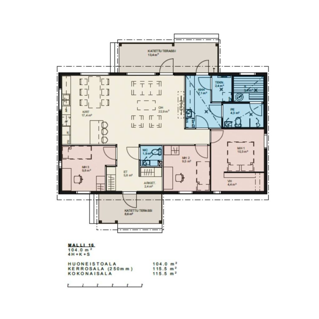
Koto CLT 104

Neliöt

104m2

Huoneisto

4H+K+S

Kokonaisala

115,5m2

Kerrosala

115,5m2

Huoneistoala

104m2

Ota yhteyttä

Tapani Pakanen

Samuli Pakanen

Tilaa hinnasto

Soita 020 730 5980 tai täytä alla oleva lomake, niin otamme sinuun yhteyttä pikimmiten.

Yhteydenottolomake

Pyydä tarjous ja tarkempi hintaerittely (Koto CLT 104)